• 网站首页
  • 公司简介
  • 产品展示
  • 产品目录
  • 企业动态
  • 联系我们
  • 电子邮局

产品展示

  • 油气润滑元件
  • 电动润滑泵
  • 手(脚)动润滑泵
  • 加油泵
  • 双线分配器
  • 单线分配器
  • 换向阀、操纵阀及其附件
  • 稀油润滑装置及稀油站
  • 稀油润滑元件
  • 管件部分

联系方式

电话:0513-83325673 传真:0513-83119878 手机:13862978163 地址:江苏省启东市汇龙镇中央河中路691号E-mail:13862978163@126.com
 
GDK02型电气控制箱(40MPa)
一、概述
  本产品适用于40MPa 双线终端式干油集中润滑系统中,用于控制润滑泵自动运转,向系统Ⅰ管线供送润滑脂,给油完成后自动换向向系统Ⅱ管线供送润滑脂,完成一个润滑周期供脂后自动停止。
  GDK02型电气控制箱为有监控控制结构,具有持续工作和自动工作二种工作状态,通过箱面的转换开关来切换。持续工作状态,当润滑泵启动后系统周而复始地持续向系统两条主管线供送润滑脂。自动工作状态,当与主机联锁信号接通后,润滑泵按系统设定的间隔时间定时向系统供送润滑脂,完成一个润滑周期后自动停止。
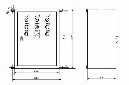
二、外形尺寸
三、标牌符号及文字
序号
标牌文字
序号
标牌文字
序号
标牌文字
1
工作准备指示
4
监控时间超过
7
警报试响
2
线I工作状态
5
超负载动转
8
持续-停止-自动
3
线II工作状态
6
贮油筒空
9
消除警报
四、GDK-02 电气控制箱外部接线图
五、使用说明
  1、适用主电源AC380V、50HZ。
  2、适用环境温度-10℃~40℃,湿度90%。
  3、周围环境无导电的介质(气体、液体)。
  4、垂直安装,其倾斜度不大于5°。
网站首页 公司简介 产品展示 产品目录 企业动态 联系方式
电话:0513-83325673 传真:0513-83119878  手机:13862978163  油气润滑     
地址:江苏省启东市汇龙镇中央河中路691号 邮编:226200  E-mail:13862978163@126.com 
版权所有:南通沃尔驰石化工程有限公司